全屋高端整装宅配 全屋无醛定制生活理念
当前位置: 首页 > 家装案例

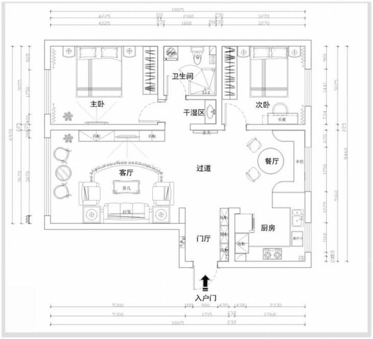
120m²平北欧风格家装案例-

发布时间: 2017-10-26 11:27:00 查看人数 1810  分享到:
案例风格 北欧风格 案例户型 普通住宅 案例面积 100-140㎡
楼盘名称 所在城市 泉州市 案例造价 15万
服务店面 布加尼整装高端宅配 改造设计师 杨玲 施工队长 李文勇

设计理念:北欧风格,时下有些不同观点。英语里其实并无北欧风格所对应的固定用语。风格一词不知什么时候开始流行于国内,从大约10年前流行的美式、欧式、田园,再到5年前流行的地中海,再到时下的北欧,似乎只有加上了风格二字才能简单道出自家的类型

  • 120m²平北欧风格家装案例
  • 120m²平北欧风格家装案例
  • 120m²平北欧风格家装案例
  • 120m²平北欧风格家装案例
  • 120m²平北欧风格家装案例
  • 120m²平北欧风格家装案例
  • 120m²平北欧风格家装案例
  • 120m²平北欧风格家装案例
  • 120m²平北欧风格家装案例
  • 120m²平北欧风格家装案例
  • 120m²平北欧风格家装案例
  • 120m²平北欧风格家装案例
  • 120m²平北欧风格家装案例
  • 120m²平北欧风格家装案例

本案例设计师

主任设计师:杨玲
姓名: 杨玲
级别: 主任设计师
擅长风格: 现代 港式 欧式 混搭 新中式

热门小区推荐 查看更多

已有 340

使用免费报价

全屋高端整装宅配 全屋无醛定制生活理念
官方微信

30秒免费报价

——

DECORATE A BUDGET
您的称呼
手机号码
装修城市
北京市
房屋户型
1室
1厅
1卫
套内面积
产品套系
轻奢装
智能报价